Šventoji
Naujas investicijoms patrauklus projektas prie Baltijos jūros kranto. Vieta, kur jūra susitinka su komfortu. Ir jūs – jūsų svajonė.
Apie projektą
Aukštai
poilsio apartamentai
bendras plotai
nvesticinis kompleksas Šventojoje – modernus daugiabutis, esantis 200 metrų nuo Baltijos jūros. Projekte derinamas aukščiausios klasės dizainas, didelis pelningumas ir stabili kurortinio nekilnojamojo turto paklausa. Dėl augančio turistų srauto ir ribotos būsto pasiūlos netoli paplūdimio, investicijos čia užtikrina palankią investicijų grąžą ir kapitalo augimo perspektyvą.Lorem ipsum dolor sit amet, consectetur adipiscing elit. Ut elit tellus, luctus nec ullamcorper mattis, pulvinar dapibus leo.
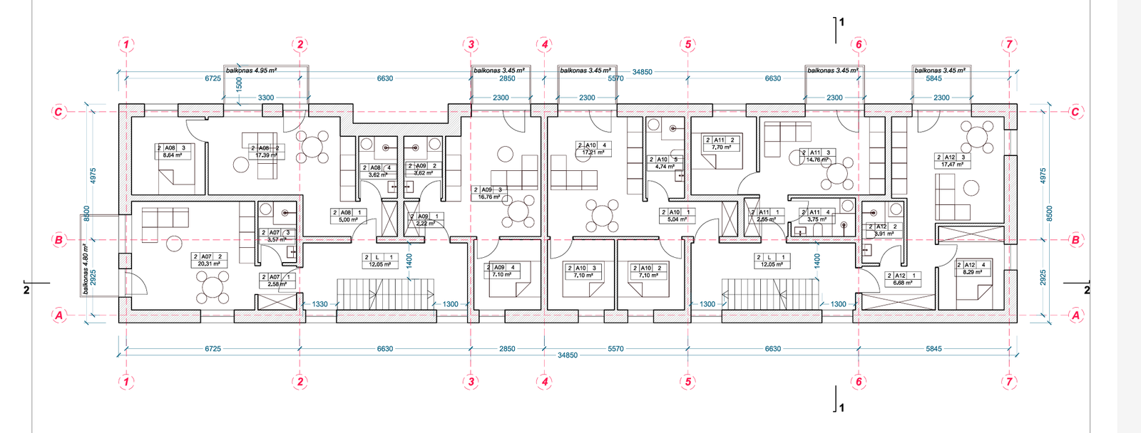
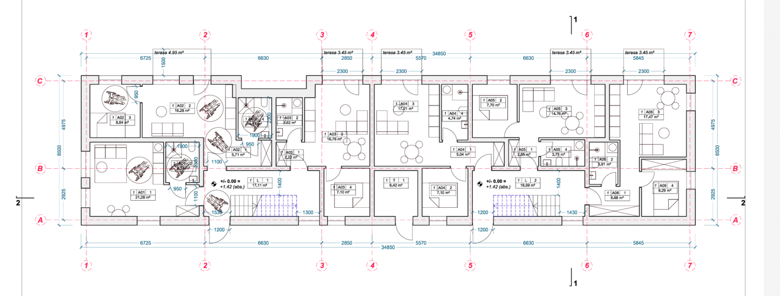
Planavimas
1 AUKŠTAS
2 AUKŠTA
3 AUKŠT
Плани квартир
Квартира №1. 16,28 кв.
Квартира №2
Kodel Šventoji
kurortinė gyvenvietė Baltijos pajūryje, 12 km į šiaurę nuo Palangos centro. Gyvenvietė išsidėsčiusi Šventosios upės kairiajame krante, jai įtekant į Baltijos jūra
Šventoji – vienas populiariausių vasaros kurortų Lietuvoje, kasmet sulaukiantis dešimčių tūkstančių poilsiautojų. Ilgi smėlio paplūdimiai, švarus oras, dviračių takai ir natūrali gamta suteikia galimybių plėtoti sveikatingumo, poilsio ir aktyvaus turizmo paslaugas. Sezoninė, bet sparčiai ilgėjanti turistų viešnagės trukmė dėl augančio kultūros, sporto ir pramogų pasiūlos.
Labai gerais ir sutvarkytais dviračių takais nuo Palangos iki Šventosios. Tuo labiau, kad dviračių maršrutas Palanga – Šventoji – tikrai vertas dėmesio. Šio dviračių tako ilgis yra apie 14 km, tad Šventąją iš Palangos neskubėdami pasieksite per valandėlę. Mindami šiuo maršrutu galėsite pasimėgauti apskritus metus žaliuojančiais miškais, jūros gaiva, pušų skleidžiamu aromatu. Sezoninė, bet sparčiai ilgėjanti turistų viešnagės trukmė dėl augančio kultūros, sporto ir pramogų pasiūlos.
Dėl artumo Palangai ir patrauklios kainos Šventoji yra nekilnojamojo turto investuotojų dėmesio centre.
Didėja poreikis moderniems apartamentams, viešbučiams, SPA centrams, restoranams bei infrastruktūros objektams.
investuotojams
Investicijų grąža Šventojoje (ROI)
1. Nekilnojamojo turto (NT) sektorius
-
Trumpalaikė nuoma: vasaros sezono metu apartamentai ar nameliai atsiperka itin greitai – užimtumas siekia 70–90 %.
-
Vidutinė metinė grąža iš nuomos gali siekti 8–12 %, priklausomai nuo vietos, sezono trukmės ir objekto kokybės.
-
NT kainos Šventojoje dar žemesnės nei Palangoje, todėl ilgalaikis vertės augimo potencialas yra didelis.
2. Turizmo ir paslaugų verslai
-
Restoranai, kavinės, pramogų parkai ar sveikatingumo centrai sezono metu generuoja itin aukštas pajamas.
-
Atsipirkimo laikotarpis dažnai 3–5 metai, priklausomai nuo investicijos dydžio ir verslo modelio.
3. Viešbučių ir SPA projektai
Mažesnė konkurencija nei Palangoje.
Galima tikėtis 10–15 % metinės grąžos, ypač jei pritraukiami klientai iš Latvijos ir Skandinavijos.
4. Ilgalaikė perspektyva
Savivaldybės investicijos į infrastruktūrą, uosto atgaivinimo projektai ir turizmo plėtra leis didinti užimtumą ir už sezono ribų.
NT vertė numatomai augs greičiau nei vidutiniškai Lietuvoje, kas užtikrina kapitalo prieaugį šalia nuomos pajamų.